現在的年輕人都是奮斗好多年,才買套屬于自己的小窩,而可以為自己的房子裝修是一件多么幸福的事情,但是如何才能夠給自己居室提供正確的設計方案呢?請看合肥裝修公司 泓鑒裝飾為你介紹了臥室、地臺、衛生間、客廳、玄關、餐廳參考設計等,讓你能夠合理的利用空間,給你一個溫馨的家。

90平米兩室一廳裝修效果圖 9.8萬搞定90平米小戶型裝修
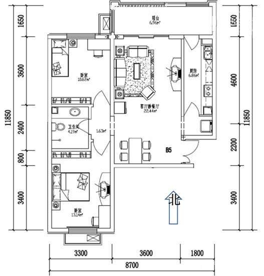
原戶型圖、設計方案

90平的室內面積,2房2廳的格局,奮斗這么多年,終于可以為自己的房子裝修操心了。以上客戶家里除了夫妻2人之外,還有一個五歲的兒子,另有老人常年在家幫忙帶孩子,客戶對室內的規劃基本是非常清楚了,不過這些設計還得問問設計師的專業意見,究竟設計師能否幫其一一實現呢?
對于收納:要求盡量所有的柜子都是封閉的,容易打掃衛生,我有分類綜合征,我的快樂就是收納無處不在。
對于風格:不要壁紙設計,不需要花花草草的設計,人到中年,越簡單越好。最好是那種關上所有柜門,只有活人在房里。整潔,利落,簡單。
以下是合肥裝修公司 設計師給出的設計方案:

設計方案:
1、入門做玄關鞋柜與酒柜的設計合二為一,同時也可以當作是餐廳的一處背景,讓空間完美利用,
2、主臥采用1.8雙人床,靠窗戶處為一米長的寫字與化妝功能相合的設計,以滿足業主對電腦運用的條件設施,衣物儲藏柜門為推拉式,方便放取也節省了空間運用。
3、副臥室除也才有推拉式衣物儲藏柜外,采用定制一米三的床,因為即使有兩個人睡,不會顯得那么擁擠,靠窗是九十公分的建議書桌,上為托板可放些書及裝飾品,同時也使得床頭背景顯得更有躍動感。
4、廚房為一字式設計可以滿足業主的所要求的功能條件。
5、陽臺地面太高為地臺方式,上鋪地板有書桌和靠客廳墻面做低矮柜使用功能。
6、衛生間依據業主要求不設計浴缸,但增加了洗衣功能。使空間充分利用。

客廳、玄關、餐廳參考設計 更多設計咨詢:0551-63732980 400-006-2759
以下是設計師推薦的參考圖,非專門設計:

沙發背景參考設計
客廳采用組合布藝沙發,簡單的背景裝飾,配合簡約沙發背景墻面造型,體現出簡約大氣,時尚中不乏沉穩,內涵中彰顯活力。
業主需求:因為客廳是北廳,最好設計得簡潔明亮,電視墻簡單大方,不要太復雜。不吊頂,可以做石膏線設計。

電視背景參考設計
電視墻面用普通玻璃噴上自己喜歡的圖案,最為電視墻面,造價不高,但極富個性,電視柜也是同理,加點雕花框,噴上銀色漆,簡單而時尚。

玄關背景參考設計
進門玄關的背景可為酒柜式設計,不但滿足了入戶鞋柜的要求,也是制作材質真正意思上的充分利用,達到多贏的效果,材質可簡單些。用這些材質來表現,換種更實用的材質,依舊達到期望的目的。
業主需求:玄關最好是到頂的柜子,中間掏空并放燈,下面鞋柜,上面收納,最好鞋柜雙方向設計。

餐廳參考設計
餐廳采用的是箱式靠坐,做些軟皮的處理即可,平時可推動餐桌的位置,留出更寬闊的通道,日常待客也更從容。
業主需求:最好能設計兩個那種箱式的靠墻的座位,小孩子靠墻吃飯安全些也好管教。平時就四個人吃飯,希望能平時把桌子至少有一個面是挨著墻的,看起來寬敞些,來客人了可以通過桌子的伸縮和移動位置來調整。
3臥室、地臺、衛生間參考設計

主臥參考設計
主臥按照常規布置。看似華貴的床頭背景,不過是奧松坂做切邊處理,定制不貴,簡單工藝周期短,但使空間飽滿,溫情十足,與整體風格吻合,有不失高雅的裝飾小柜。

次臥參考設計
副臥室的設計更是簡單明快,但并不缺少生活的氣息,高潔清閑,為空間隨意調整帶來條件,是空間靈動很強,讓空間更加簡潔,舒適。

地臺參考設計
將陽臺封閉而形成陽光書房,在一側有書桌設計,地臺高起,可以坐在地臺上品茶,聊天,也是和孩子玩耍的地方,雖然地方不大,但輕松舒適,靠窗的矮柜有增添了儲物的功能。真是一舉無數得。
業主需求:北陽臺剩下廚房隔斷的部分,希望設計一個他自己看書沉思的角落,榻榻米設計可否?
衛生間參考設計 更多設計咨詢:0551-63732980 400-006-2759
衛生間依據業主要求不設計浴缸,但增加了洗衣功能。使空間充分利用。長型洗手區方便安置洗漱用品,并且上方設計一組墻柜,反光材質板門,省去鏡子的安裝,還能擴大視覺一舉兩得。
|