久久久久久激情网_久草欧美一区在线_亚洲播播手机播放_九草在线视频支援_亚洲五月六月丁香缴情久久,好看的电视剧,欢乐颂第三季,天域苍穹

您好,歡迎來到合肥泓鑒裝飾工程有限公司 [合肥辦公室裝修/合肥店面裝修] —講誠信經營做行業榜樣 企業微博  |   企業微信    網站地圖
歡迎光臨合肥泓鑒裝飾工程有限公司    [合肥辦公室裝修/合肥店面裝修]
熱門搜索:現代簡約  家裝  客廳  商鋪
首 頁 家裝案例 公裝案例 商裝案例 開放工地 裝修百科 線上服務 施工工藝 關于企業
家裝作品
公裝作品
提交信息,試試看!
已有33人提交  
合肥泓鑒裝飾工程有限公司 [合肥辦公室裝修/合肥店面裝修]
電話:0551-6373 2980
傳真:0551-6373 2980
聯系人:嚴經理
地址:合肥市包河區信達天御瑯詩郡13棟203室
家裝作品
挑高公寓 5米6小復式裝修設計案例
 
 
分享到: 更多

 

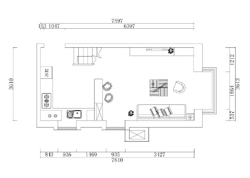
  公寓裝修平面布置圖公寓裝修設計:0551-63732980

合肥裝修52平米一居室小戶型,裝修總價4萬元現代簡約風格案例解析,先上平面布置圖大家看看;


公寓裝修設計效果圖公寓裝修設計效果圖

公寓裝修設計效果圖 合肥裝修公司現代簡約小復式 

公寓裝修設計效果圖公寓裝修設計效果圖(2)
設計說明:小空間收納有別于量體收納的開放特性,柜體式的收納功用更能將小空間化零為整,空間感自然放大。在家具配置上,選擇多功能性的收納型家具,達到實時且富彈性機能的收納功效。更多實用小戶型裝修設計案例,盡在合肥泓鑒裝飾網
www.ah-hongjian.com          公寓裝修設計:0551-63732980

返回上一級
相關內容

下一篇:現代歐式風格裝修三居室
 
品牌中心   設計案例   公司新聞   合肥裝飾設計   聯系我們
公司簡介
企業榮譽
公司裝修項目解析
施工工藝
設計團隊
品質材料
家裝作品
公裝作品
公司新聞
行業資訊
辦公室、店面裝修
新聞資訊
裝修綜合
家居建材
裝飾裝修設計
店面裝修風水
泓鑒裝修流程
裝修施工材料
裝修施工工藝
家庭裝修保養
裝修注意事項
裝修課堂釋疑
聯系方式
裝修熱線:0551-6373 2980
公司地址:合肥市包河區信達天御瑯詩郡13棟203室
版權所有:合肥泓鑒裝飾工程有限公司 [合肥辦公室裝修/合肥店面裝修]
溫馨提示:任何關于家庭裝修的建議都不能替代資深設計師一對一的服務。在線預約量房可獲得設計方案和預約清單。
百度搜索:裝飾公司 裝潢公司 裝修公司 裝修設計 備案號:皖ICP備12017595號-1
合肥泓鑒裝飾工程有限公司
[合肥環保的裝修公司]
技術支持:拓野網絡
主站蜘蛛池模板: 永安市| 田林县| 富锦市| 丽水市| 阆中市| 福贡县| 中方县| 峨边| 顺平县| 灵石县| 当雄县| 会昌县| 云和县| 淳安县| 阳信县| 秭归县| 黔东| 尉犁县| 榆林市| 秦安县| 搜索| 阜新| 贺州市| 若羌县| 呼玛县| 六枝特区| 新安县| 聂荣县| 华坪县| 成安县| 行唐县| 台安县| 巫溪县| 依兰县| 公主岭市| 柳州市| 宜黄县| 沅陵县| 桓台县| 和平区| 吴川市|